富力又一城
更新時間:2017-05-31
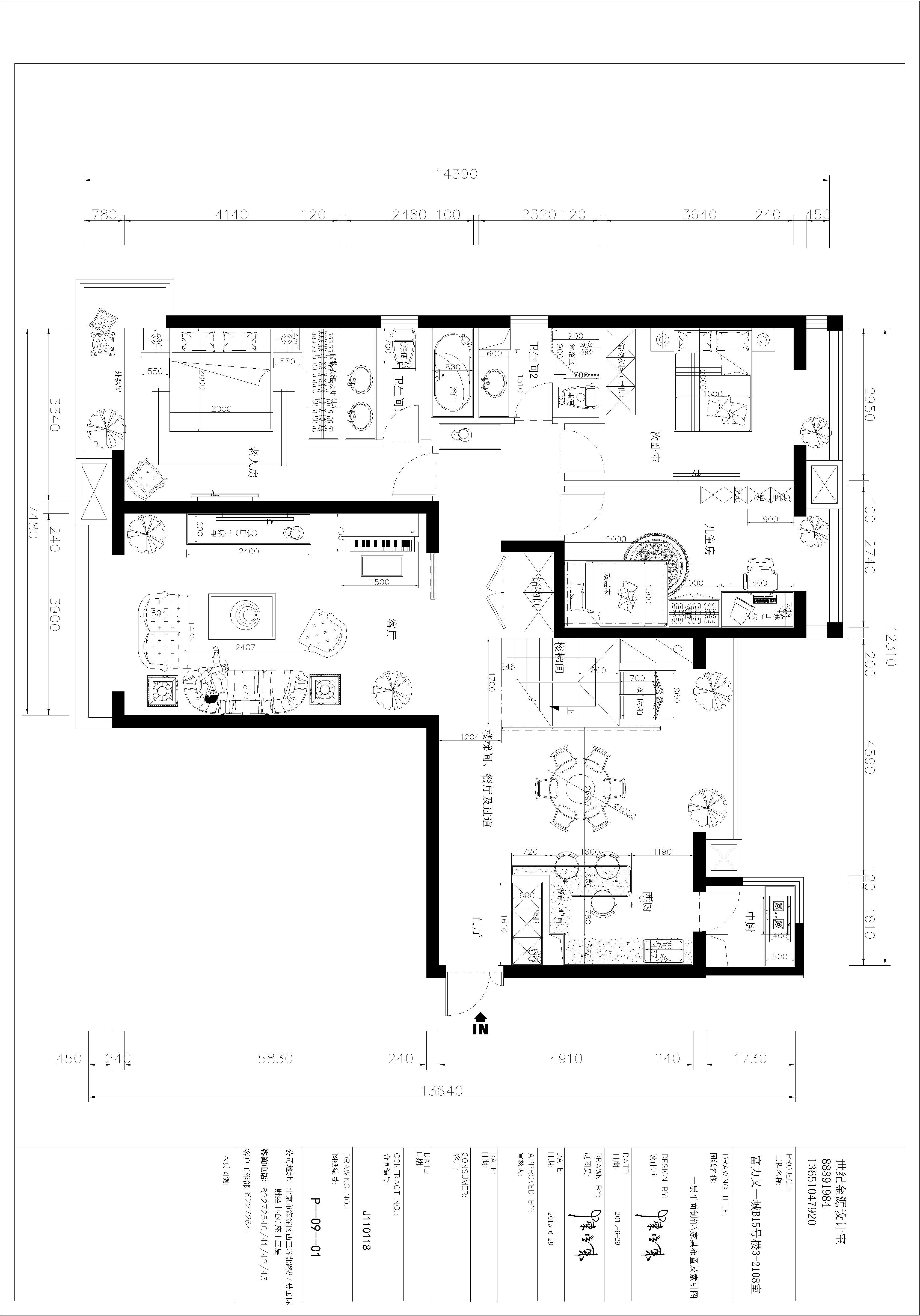
| 設計風格 | 簡歐 | 戶型案例 | 四室一廳兩衛 | 案例面積 | 168 |
|---|---|---|---|---|---|
| 樓盤名稱 | 富力又一城 | 所在城市 | 北京 | 案例造價 | 30萬 |
| 設計師 | |||||

案例說明:
白色調為基調,以簡單的線條與花紋點綴出歐式的特點,整個空間淡雅而大氣,有一種優雅的氣質散發其中。
客廳設計采用整體白色調為主,以大理石、淡啡色墻紙做主要裝飾,白木線及灰色鏡面作點綴,筆直簡約的線條同樣能勾勒出豪華時尚的氣息。
書房同樣延續了客廳以白色為主調的設計風格,白色簡約的書柜,加上簡約的書桌,明亮的空間,書房變得充滿陽光、安靜、舒適。
臥室則打破了客廳那種明亮的歐式風格,采用了稍微深色的色調,讓臥室感覺非常安靜溫馨。
同風格案例:更多>>
同面積案例:















京公網安備 11010802032436號