【黃石】金橋港灣
更新時間:2019-03-27
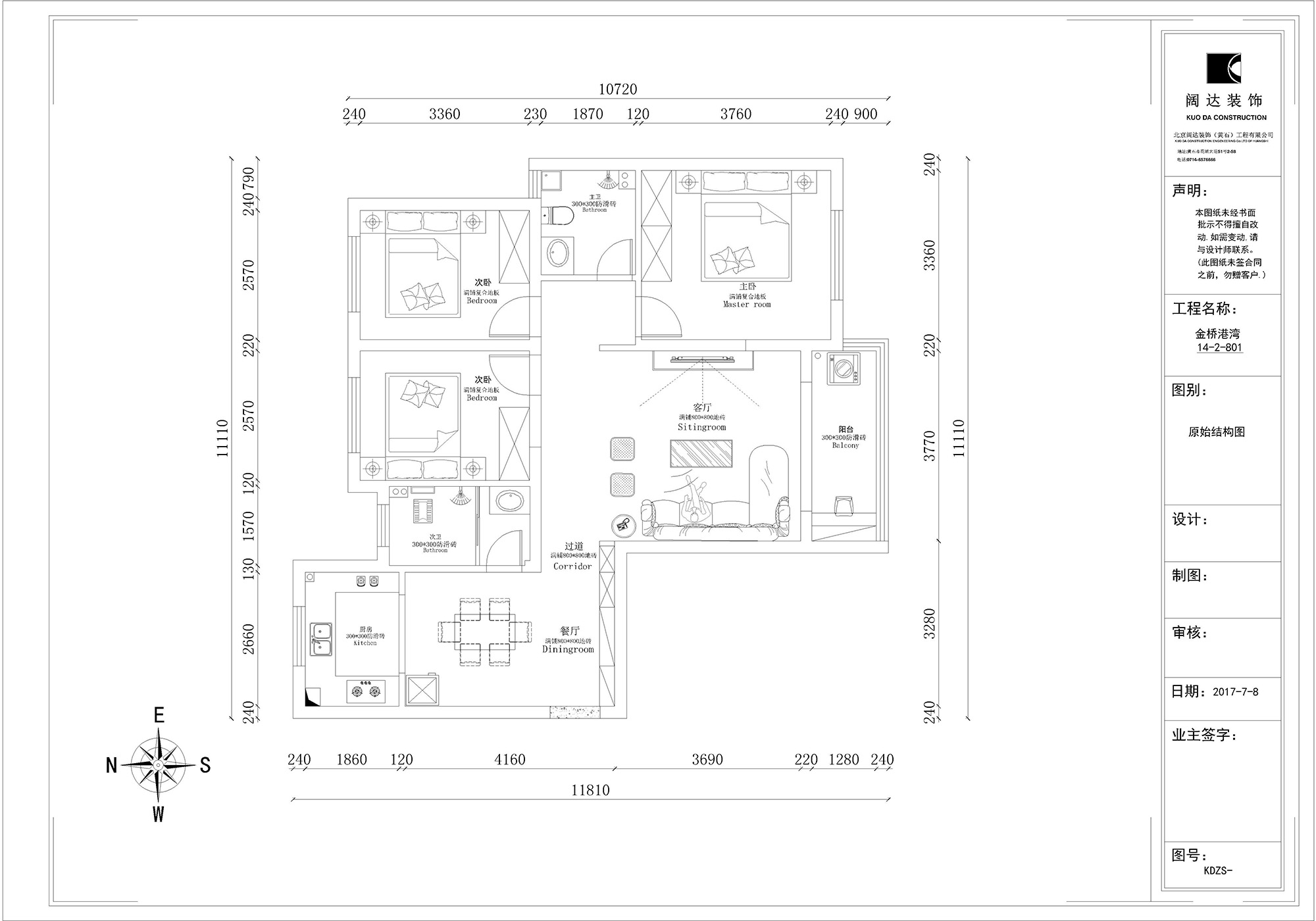
| 設計風格 | 新中式 | 戶型案例 | 三室兩廳一廚兩衛 | 案例面積 | 106 |
|---|---|---|---|---|---|
| 樓盤名稱 | 金橋港灣 | 所在城市 | 黃石市 | 案例造價 | 13萬 |
| 設計師 | 向文龍 | ||||

案例說明:
業主是一對60多歲的夫妻,男業主喜歡新中式,女業主卻喜歡簡單一些,所以最終在風格上選擇了綠色系的新中式。綠色系是回歸自然,不忘初心,是大自然的本色,藤蘿纏繞,花團錦簇,鳥鳴山幽,層林盡染,帶你回歸自然,暢快呼吸,享受詩意的棲居。同風格案例:更多>>
同面積案例:
| 客戶服務熱線: | 010-84580331 | 加盟咨詢熱線: | 010-82272748 | (工作日:9:00-18:00) |
預約加盟
預約裝修
客戶服務
返回頂部
闊達標準工程,一看就不同!
全國累計已有一百余家加盟公司
免費獲得家裝服務
全國各地業主都在申請!
闊達裝飾竭誠為您服務!
| 設計風格 | 新中式 | 戶型案例 | 三室兩廳一廚兩衛 | 案例面積 | 106 |
|---|---|---|---|---|---|
| 樓盤名稱 | 金橋港灣 | 所在城市 | 黃石市 | 案例造價 | 13萬 |
| 設計師 | 向文龍 | ||||
